Mehr anzeigen zum Thema Ausstattung Beschreibung
Ausstattung Beschreibung
Die Grundsanierung des Hauses erfolgte 1996 und umfasst neben Dach-, Fassaden- und Elektroerneuerung auch die Außenabdichtung des Hauses. Seitdem wurde es weiterhin stets gut gepflegt.
– Einbauküchen
– Gartenküche im Wintergarten
– Kamin
– Elektrisch gesteuerter Sonnenschutz
– hochwertige, praktischen Einbauschränke und Stauräume
– Gasheizung (2014)
– 2 Bäder und 2 Gäste-WCs
– Fußbodenheizung im Wintergarten
– Böden: Fliesen, Naturstein, Parkett (EG) und Teppichboden (OG, Spitzboden)
– Große Garage mit Abstellbereich
– Indoorpool (müsste erneuert/reaktiviert werden)
– Herrlich großer und offener Garten
– Einbauküchen
– Gartenküche im Wintergarten
– Kamin
– Elektrisch gesteuerter Sonnenschutz
– hochwertige, praktischen Einbauschränke und Stauräume
– Gasheizung (2014)
– 2 Bäder und 2 Gäste-WCs
– Fußbodenheizung im Wintergarten
– Böden: Fliesen, Naturstein, Parkett (EG) und Teppichboden (OG, Spitzboden)
– Große Garage mit Abstellbereich
– Indoorpool (müsste erneuert/reaktiviert werden)
– Herrlich großer und offener Garten
Mehr anzeigen zum Thema Beschreibung
Beschreibung
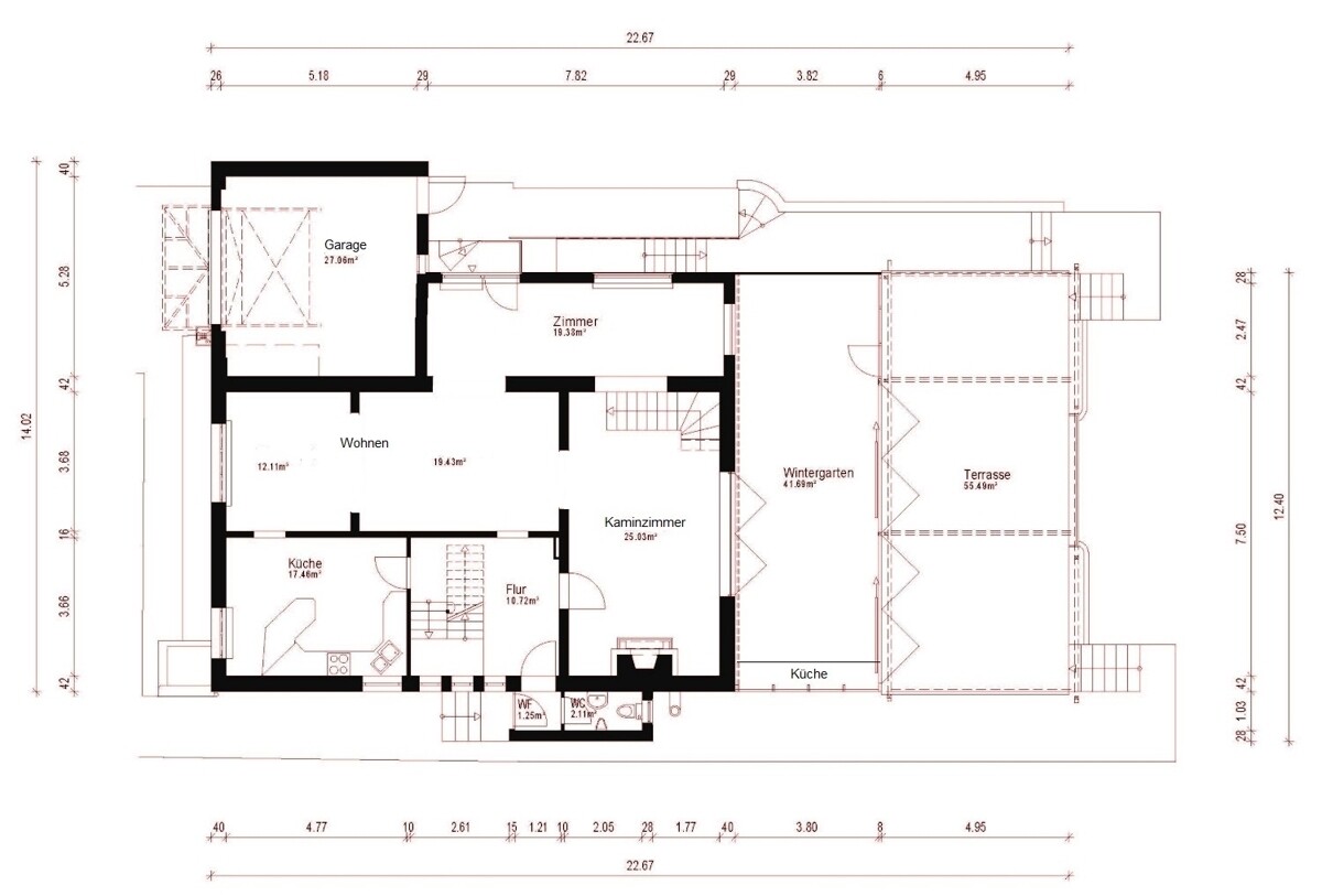
Das Haus wurde im Jahr 1934 erbaut und 1996 im Zuge der Grundsanierung um Anbauten und den großen Wintergarten erweitert. Die Öffnung zum Parkgarten mit dem Wintergarten und der Terrasse machen das Haus besonders interessant, hell und repräsentativ.
Der schönste Platz ist sicherlich der lichtdurchflutetet großzügige Wintergarten mit einer weiteren Küche, der im Sommer fast vollständig zur Terrasse und dem wunderschön angelegtem Garten geöffnet werden kann. Hier lässt sich der Sommer mit Familie und Freunden – auch in großem Kreis – genießen!
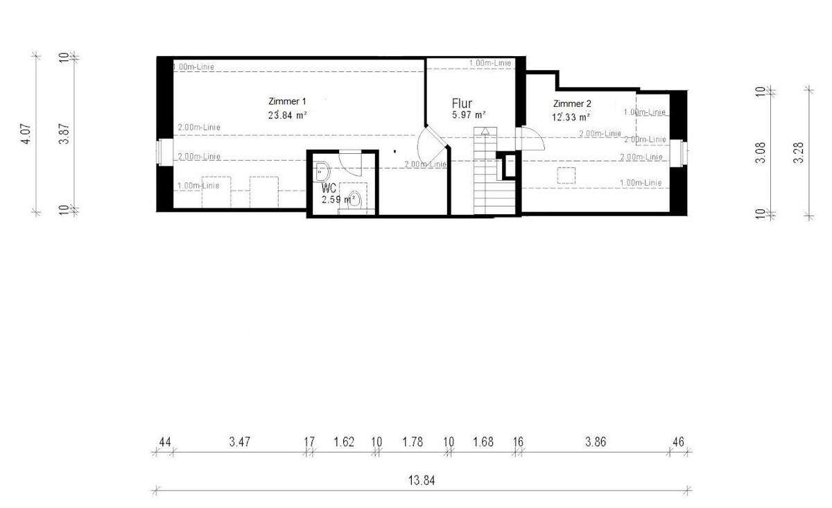
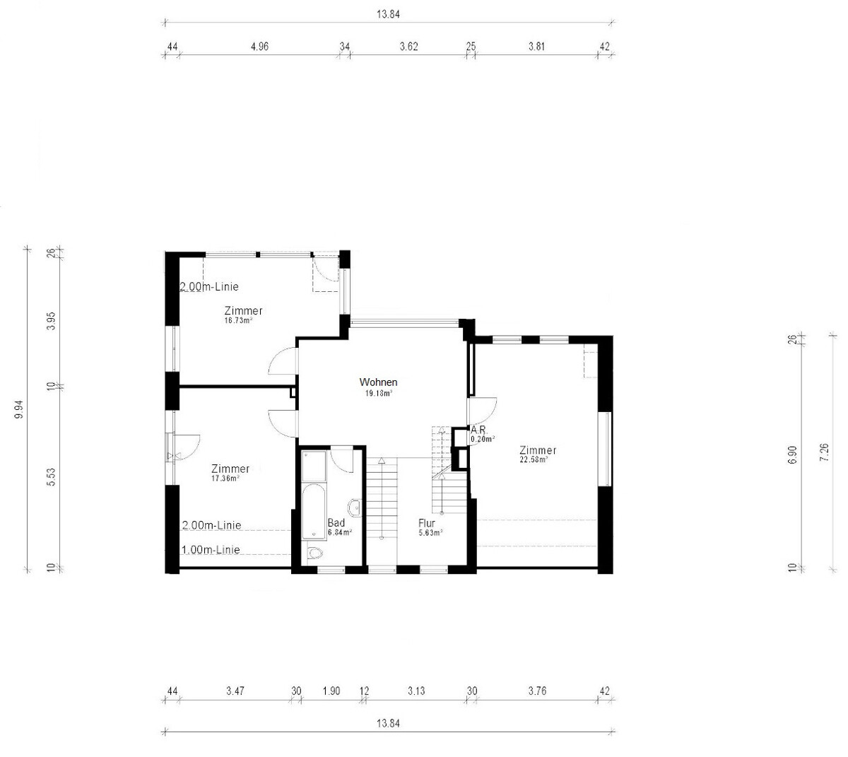
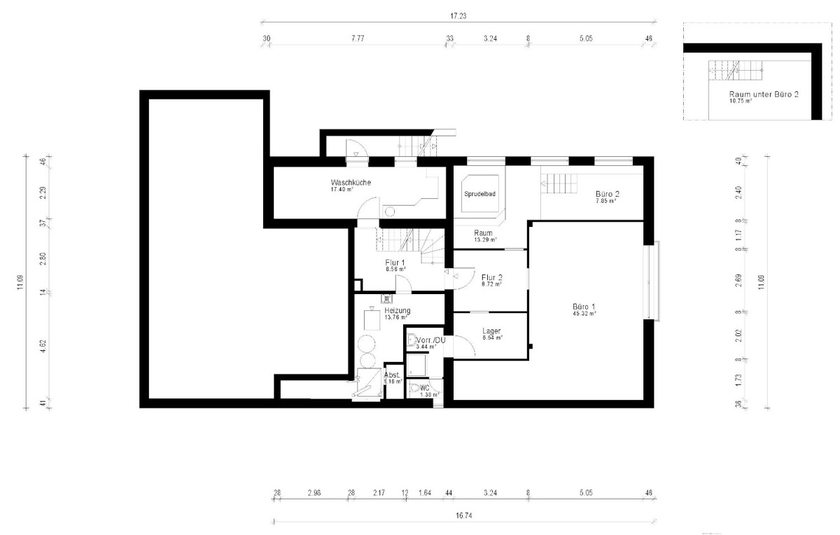
Im Obergeschoss befinden sich 3 Zimmer und ein modernes Bad. Der Spitzboden ist ausgebaut (2 kleine Räume und ein Bad). Im gut belichteten Untergeschoss befinden sich Büroräume, Archiv und Abstellbereiche.
Der schönste Platz ist sicherlich der lichtdurchflutetet großzügige Wintergarten mit einer weiteren Küche, der im Sommer fast vollständig zur Terrasse und dem wunderschön angelegtem Garten geöffnet werden kann. Hier lässt sich der Sommer mit Familie und Freunden – auch in großem Kreis – genießen!
Im Obergeschoss befinden sich 3 Zimmer und ein modernes Bad. Der Spitzboden ist ausgebaut (2 kleine Räume und ein Bad). Im gut belichteten Untergeschoss befinden sich Büroräume, Archiv und Abstellbereiche.
Mehr anzeigen zum Thema Lage
Lage
Das Haus befindet sich am östlichen Rand von Dahlem, genau an der Grenze zu Steglitz nahe am Botanischem Garten – im grünen und begehrten Südwestteil von Berlin.
Leben in Berlin-Dahlem bedeutet ruhiges und grünes Wohnen bei gleichzeitig idealer Anbindung an die Stadt. Hier prägen vor allem Villen, Park- und Seenlandschaften das Bild.
Dahlem Dorf (U3) und Rathaus Steglitz (S1 und U9) sind jeweils ca. 1 km entfernt; den Bus (X83, 101) erreichen Sie in weniger als 5 Fußminuten. In wenigen Minuten sind Sie auch mit dem Auto auf der Stadtautobahn und können z.B. Innenstadt, Flughafen BER ansteuern.
Einkaufsmöglichkeiten: Geschäfte für den primären Bedarf, Restaurants und Cafés finden Sie in Dahlem Dorf, dem Breitenbachplatz und in der Steglitzer Schlossstraße.
Diverse gefragte (öffentliche und private) Schulen und Kitas befinden sich im nahen Umkreis, sowie viele Institute der Freien Universität Berlin erreichen Sie bequem zu Fuß.
Die Lage bietet einen sehr hohen Freizeit- und Naherholungswert:
Neben dem quasi vor der Tür befindlichen Botanischem Garten, sind Sie auch rasch an der Domäne Dahlem und am Grunewald mit seiner schönen Seenkette.
Leben in Berlin-Dahlem bedeutet ruhiges und grünes Wohnen bei gleichzeitig idealer Anbindung an die Stadt. Hier prägen vor allem Villen, Park- und Seenlandschaften das Bild.
Dahlem Dorf (U3) und Rathaus Steglitz (S1 und U9) sind jeweils ca. 1 km entfernt; den Bus (X83, 101) erreichen Sie in weniger als 5 Fußminuten. In wenigen Minuten sind Sie auch mit dem Auto auf der Stadtautobahn und können z.B. Innenstadt, Flughafen BER ansteuern.
Einkaufsmöglichkeiten: Geschäfte für den primären Bedarf, Restaurants und Cafés finden Sie in Dahlem Dorf, dem Breitenbachplatz und in der Steglitzer Schlossstraße.
Diverse gefragte (öffentliche und private) Schulen und Kitas befinden sich im nahen Umkreis, sowie viele Institute der Freien Universität Berlin erreichen Sie bequem zu Fuß.
Die Lage bietet einen sehr hohen Freizeit- und Naherholungswert:
Neben dem quasi vor der Tür befindlichen Botanischem Garten, sind Sie auch rasch an der Domäne Dahlem und am Grunewald mit seiner schönen Seenkette.
Mehr anzeigen zum Thema Sonstige Angaben
Sonstige Angaben
Wir möchten Sie bitten, Ihre Kontaktdaten vollständig und richtig anzugeben, denn nur dann können wir Ihnen – auch im Interesse der Eigentümer – unser Exposé mit Adressenangabe zusenden. Danke für Ihr Verständnis!
Mehr anzeigen zum Thema Sonstige Angaben
Energieausweis
- Nutzungsart
- Wohnen
- Baujahr lt. Energieausweis
- 1930
- Energieausweis
- liegt vor
- Energieausweis gültig bis
- 03.04.2034
- Energieeffizienzklasse
- H
- wesentlicher Energieträger
- Gas