Mehr anzeigen zum Thema Ausstattung Beschreibung
Ausstattung Beschreibung
✓ Schöne klassische Altbauvilla mit hohen Decken, historischen Fliesen und Parkett
✓ Sehr charmante Loggia mit Öffnung zur Terrasse und Garten
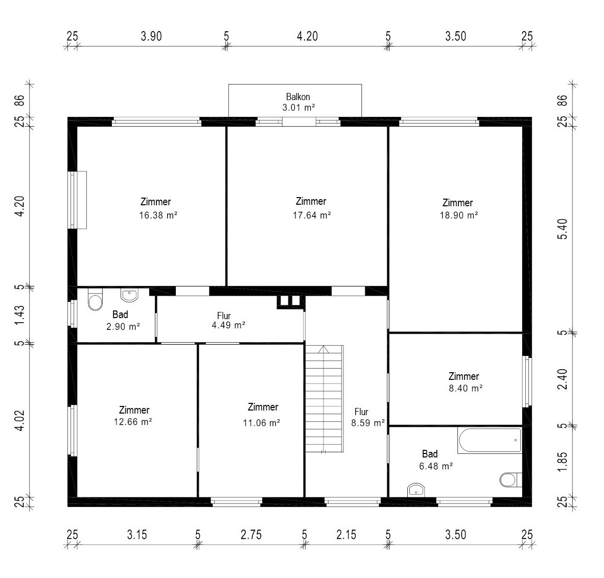
✓ Großzügiger, „familientauglicher“ Grundriss
✓ 2 Bäder und Gäste-WC
✓ Große Terrasse und sehr schöner Garten (Süd/West-Ausrichtung)
✓ 2 Garagen
✓ Sehr charmante Loggia mit Öffnung zur Terrasse und Garten
✓ Großzügiger, „familientauglicher“ Grundriss
✓ 2 Bäder und Gäste-WC
✓ Große Terrasse und sehr schöner Garten (Süd/West-Ausrichtung)
✓ 2 Garagen
Mehr anzeigen zum Thema Beschreibung
Beschreibung
Es handelt sich um eine gut proportionierte Dahlemer Villa aus den 30er Jahren mit klarer, moderner Formensprache. Eine charmante Loggia und schöne Terrasse führen in den ruhigen, sonnigen Garten in Süd-/Westausrichtung – Hecken und Bäume schützen Ihre Privatsphäre.
Der jetzige Grundriss bietet mit 5-6 Zimmer im Obergeschoss sehr viel Platz – auch für eine große Familie – durch Öffnung und Zusammenlegung können Sie alternativ auch großzügige Räumlichkeiten mit schönen Bädern schaffen.
Insgesamt befindet sich das Anwesen in einem weitestgehend gepflegten und ansprechenden Zustand; Modernisierungen und Instanthaltungsmaßnahmen wurden sukzessiv durchgeführt. Es besteht jedoch Bedarf einer umfassenden Modernisierung und energetischer Sanierung. Es besteht kein Denkmalschutz.
Der jetzige Grundriss bietet mit 5-6 Zimmer im Obergeschoss sehr viel Platz – auch für eine große Familie – durch Öffnung und Zusammenlegung können Sie alternativ auch großzügige Räumlichkeiten mit schönen Bädern schaffen.
Insgesamt befindet sich das Anwesen in einem weitestgehend gepflegten und ansprechenden Zustand; Modernisierungen und Instanthaltungsmaßnahmen wurden sukzessiv durchgeführt. Es besteht jedoch Bedarf einer umfassenden Modernisierung und energetischer Sanierung. Es besteht kein Denkmalschutz.
Mehr anzeigen zum Thema Lage
Lage
Der Ortsteil Dahlem befindet sich mitten im grünen und begehrten Südwestteil von Berlin. Hier prägen vor allem Villen, Park- und Seenlandschaften das Bild. Leben in Berlin-Dahlem bedeutet exklusives und grünes Wohnen bei gleichzeitig idealer Anbindung an die Stadt.
Das sehr großzügige Einfamilienhaus befindet sich wenige Fußminuten vom schönen Dreipfuhlpark entfernt.
ÖPNV: Durch die Nähe zum U-Bhf. U3 – Freie Universität/Thielplatz (500 m) erreichen Sie in wenigen Fahrminuten die Berliner Innenstadt. Über die nahe Clayallee, die B1 (Unter den Eichen) oder die Avus sind Sie auch perfekt an die Innenstadt oder den BER angebunden.
Geschäfte für den täglichen Bedarf, Restaurants, Cafés etc. befinden sich im nahen Einkaufszentrum am ehemaligen Truman Plaza oder in Dahlem Dorf.
Sehr gute Schulen (öffentliche und private) sind größtenteils zu Fuß erreichbar: z.B. Mühlenau
Grundschule, Erich-Kästner-Grundschule, Arndtgymnasium Dahlem, Rudolf-Steiner-Schule,
Quentin-Blake-Schule, Königin-Luise-Stift.
Das sehr großzügige Einfamilienhaus befindet sich wenige Fußminuten vom schönen Dreipfuhlpark entfernt.
ÖPNV: Durch die Nähe zum U-Bhf. U3 – Freie Universität/Thielplatz (500 m) erreichen Sie in wenigen Fahrminuten die Berliner Innenstadt. Über die nahe Clayallee, die B1 (Unter den Eichen) oder die Avus sind Sie auch perfekt an die Innenstadt oder den BER angebunden.
Geschäfte für den täglichen Bedarf, Restaurants, Cafés etc. befinden sich im nahen Einkaufszentrum am ehemaligen Truman Plaza oder in Dahlem Dorf.
Sehr gute Schulen (öffentliche und private) sind größtenteils zu Fuß erreichbar: z.B. Mühlenau
Grundschule, Erich-Kästner-Grundschule, Arndtgymnasium Dahlem, Rudolf-Steiner-Schule,
Quentin-Blake-Schule, Königin-Luise-Stift.
Mehr anzeigen zum Thema Sonstige Angaben
Sonstige Angaben
Wir möchten Sie bitten, Ihre Kontaktdaten vollständig und richtig anzugeben, denn nur dann können wir Ihnen – auch im Interesse der Eigentümer – unser Exposé mit Adressenangabe zusenden. Danke für Ihr Verständnis!
Mehr anzeigen zum Thema Sonstige Angaben
Energieausweis
- Nutzungsart
- Wohnen
- Baujahr lt. Energieausweis
- 1992
- Endenergiebedarf
- 285,48 kWh/(m²a)
- Energieausweis
- Bedarfsausweis
- Energieausweis gültig bis
- 14.07.2035
- Energieeffizienzklasse
- H
- wesentlicher Energieträger
- Öl
Ihre Ansprechpartnerin
Frau Anja Unkrig
GrundBauArt GmbH
- Tel.:
- 030 8313728
- E-Mail:
- info@grundbauart.de
Brümmerstraße 20a
14195 Berlin / Dahlem